Кейс: Полная Перепланировка и Дизайн Квартиры для Взрослой Пары в Москве
Введение: Начало Проекта и Запрос Клиентов
Проект перепланировки московской квартиры начался с неожиданного поворота: пожилая пара, долгое время не хотевшая ничего менять, решилась на ремонт после того, как плитка в туалете начала отваливаться. Это событие стало толчком к осознанию, что пришло время обновить пространство и сделать его более функциональным и удобным для жизни в их текущих обстоятельствах.
Проблемы: Ограниченное Пространство, Архитектурные Препятствия и Нестабильная Обстановка
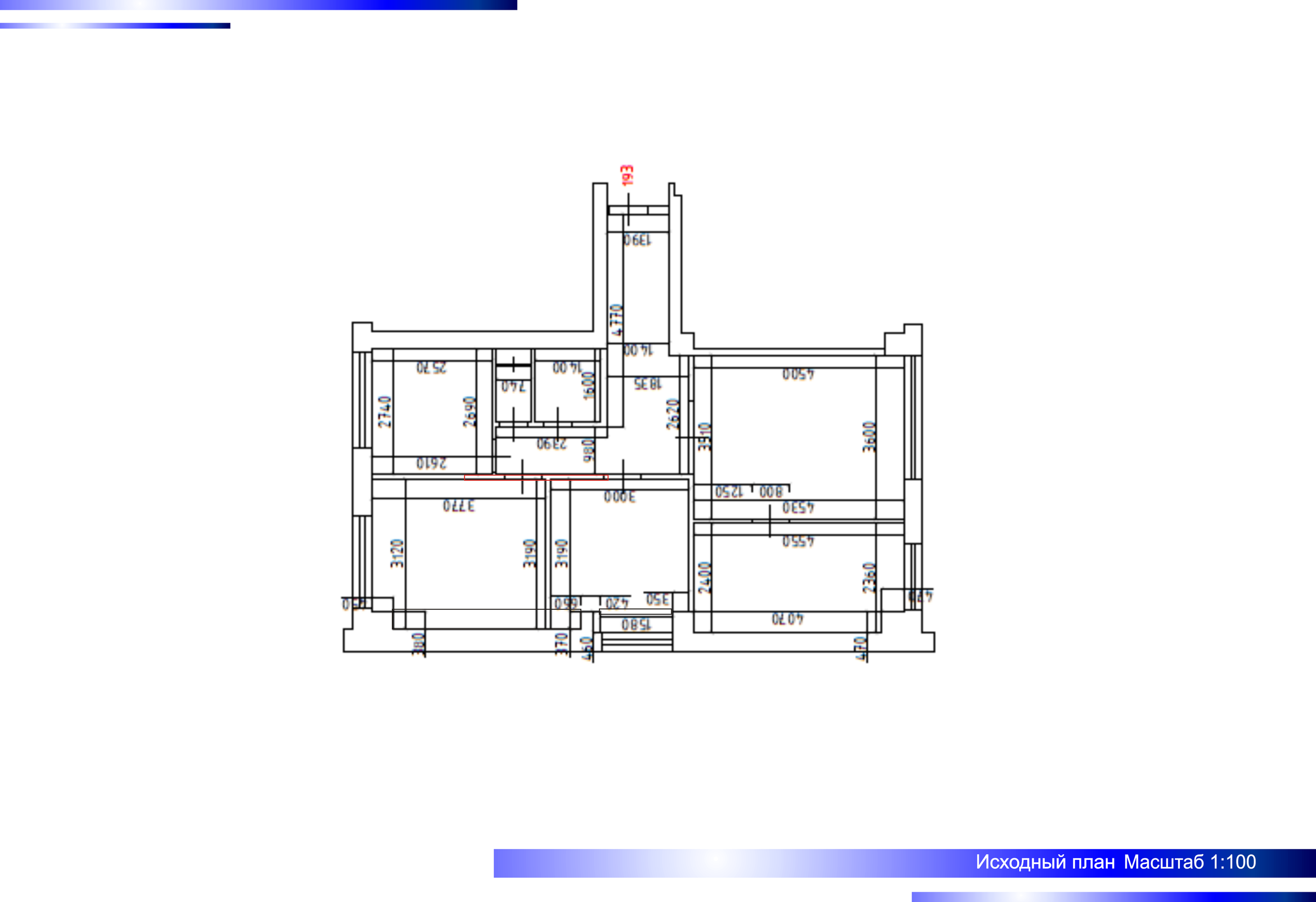
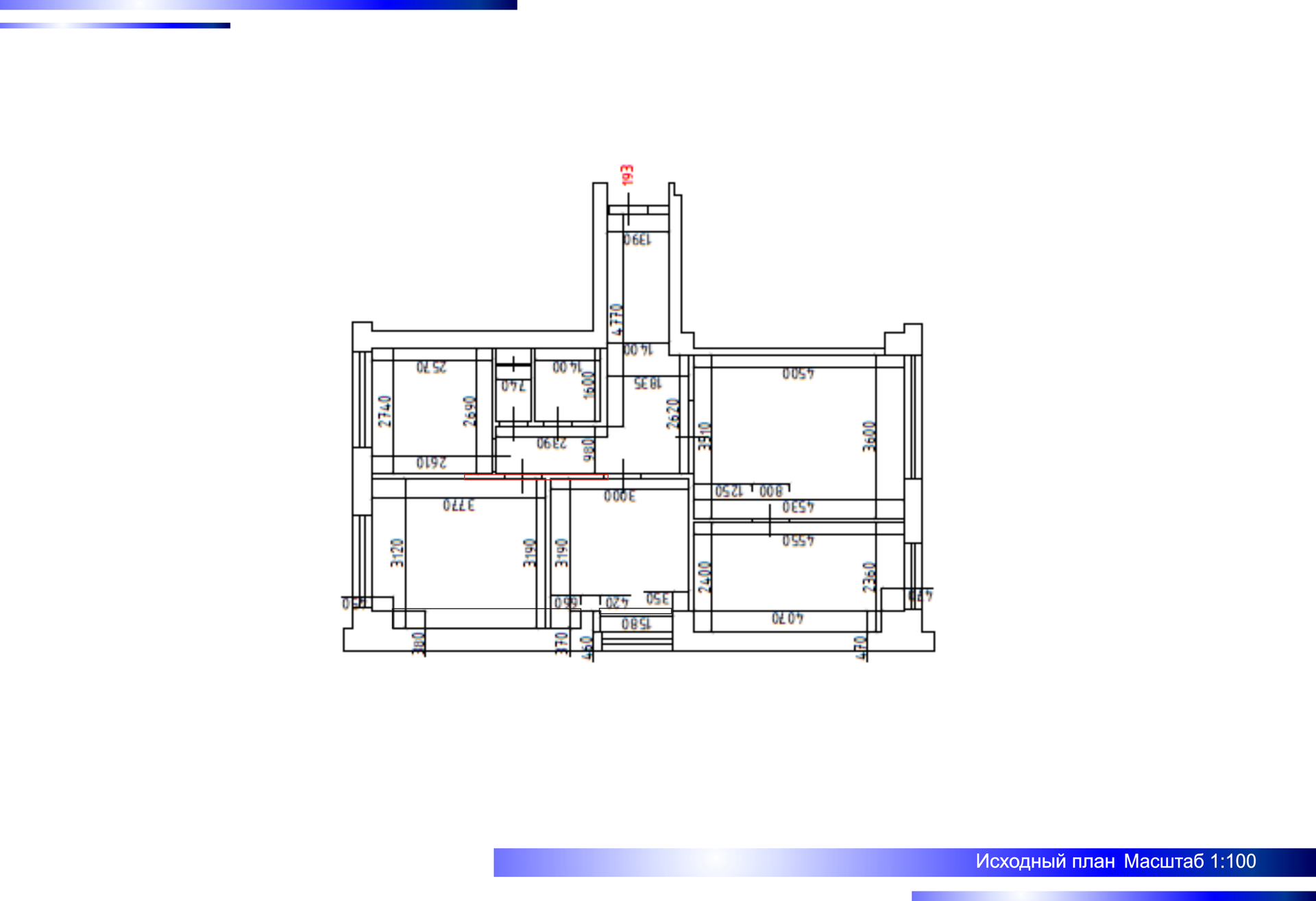
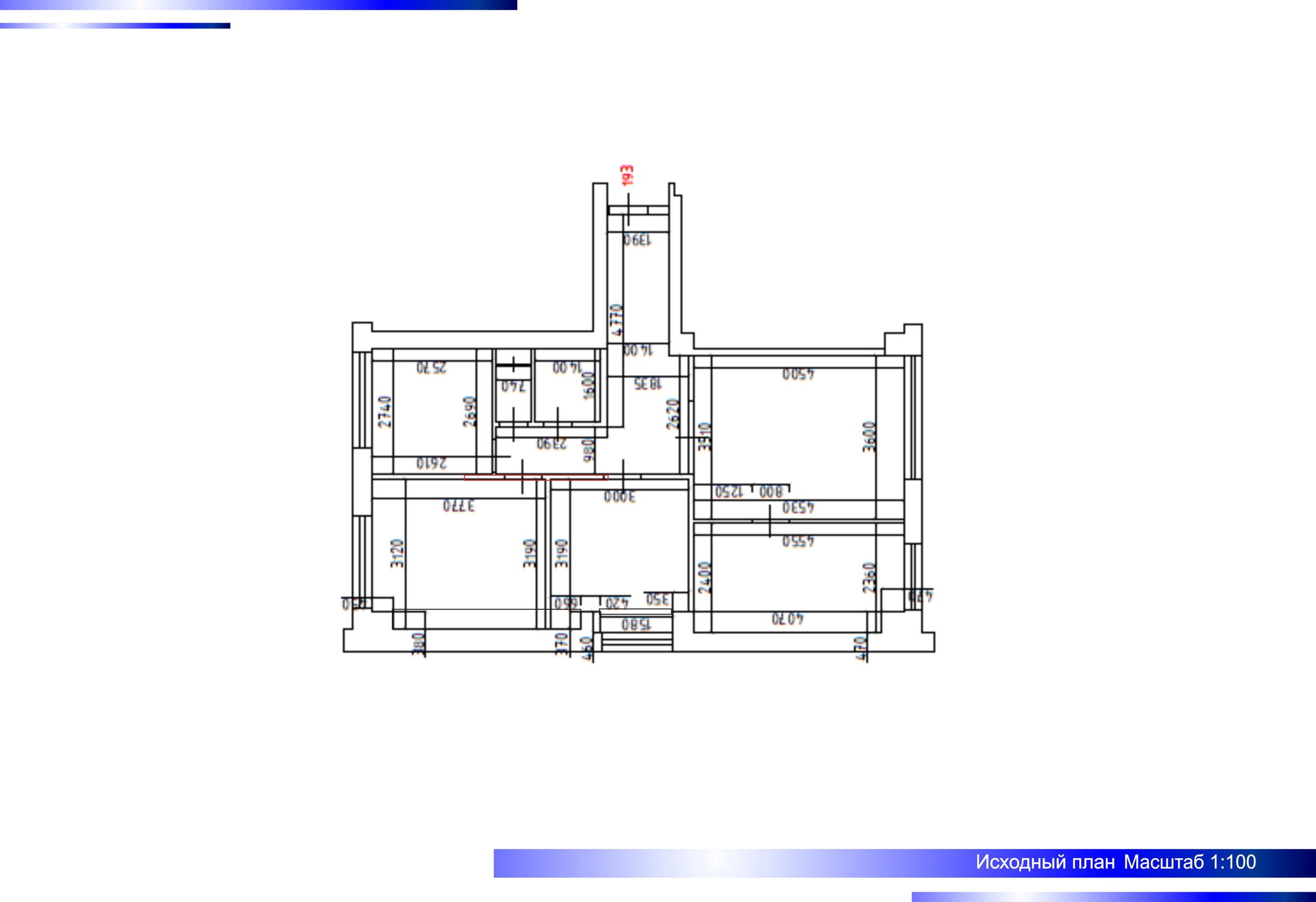
Изначально квартира состояла из четырех комнат с длинным коридором и неудобной планировкой (в прошлом в здании пром назначения). Одной из ключевых проблем стали несущие потолочные балки, проходящие вдоль окон, по потолку и и колонны по углам квартиры, которые ограничивали возможности по изменению пространства.
Квартира, находящаяся на высоком этаже, имела пять больших окон, с которых открывался потрясающий вид на Москву — можно было любоваться и закатами, и восходами. Однако недостаток пространства и устаревший дизайн не позволяли наслаждаться всем этим в полной мере.
Решения: Перепланировка и Оптимизация Пространства для Удобства и Функциональности
Наша цель заключалась в создании более открытого и удобного пространства, которое бы соответствовало потребностям клиентов. Основные решения включали:
- Перепланировка и снос перегородок: Мы решили превратить четырехкомнатную квартиру в трехкомнатную, чтобы обеспечить простор и удобство. Было предложено снести существующие перегородки и построить новые, чтобы создать более логичное и открытое пространство. Теперь вход в кухню расположен из гостиной, что позволило объединить пространство и создать ощущение большего простора.
- Оптимизация технических зон: Мы увеличили техническую зону перед санузлом и создали постирочную, а также объединили санузел с душем и ванной, чтобы максимально использовать доступное пространство. Это решение позволило клиентам получить функциональную и удобную зону для всех нужд.
- Решение вопросов с хранением и функциональными зонами: Чтобы организовать больше мест для хранения, была изменена конфигурация стен между спальней и кабинетом, а также между спальней и прихожей. Это позволило разместить встроенные шкафы, которые не перегружают пространство и обеспечивают достаточно мест для хранения.
- Работа с особенностями планировки: Из-за наличия несущих балок и газовой трубы на кухне, которые нельзя было убрать, мы разработали специальные решения. В частности, мы использовали два высоких шкафа с фальшпанелью для маскировки газовой трубы, обеспечив при этом доступ для проверок и обслуживания. Для визуального увеличения пространства и высоты потолков мы вынесли линию штор внутрь комнаты за несущую балку.
- Выбор материалов и дизайн интерьера: Основное внимание было уделено выбору материалов, тканей и декора, чтобы создать уютный и теплый интерьер. Мы использовали палитру мягких осенних оттенков с яркими акцентами, что идеально подходит под цветотип хозяйки. Это позволило сделать квартиру нейтральной, но с возможностью добавлять атмосферу через детали и декор.
Статус Проекта: Работа Ведется
На данный момент проект все еще в процессе завершения. Ведутся строительные работы, идет активное перепланирование и обустройство пространства. Как отмечает Наталья, дизайнер проекта: «Я свою часть работы сделала: перепланировку, подбор и консультации. А стройка еще идет, они там ломают, рушат. Процесс не завершен.»
Поэтому на текущий момент нет фотографий «до и после», но планировка уже одобрена и идет к реализации.
Результат: Просторная и Удобная Квартира для Современной Жизни
Даже на стадии проекта, уже видно, что новая планировка квартиры сделает ее более открытой, удобной и современной. Большая гостиная с зоной отдыха, компактная, но функциональная кухня, а также продуманное расположение шкафов создадут ощущение гармонии и уюта.
Клиенты получили пространство, которое стало отражением их нужд и предпочтений, и теперь смогут наслаждаться потрясающими видами Москвы, как никогда раньше.
Заключение: Создание Пространства, Которое Живет и Развивается
Этот проект показывает, как важна гибкость и готовность к изменениям, даже когда речь идет о ремонте в квартире с ограничениями. Если вы хотите преобразить своё жилье и сделать его стильным и функциональным, свяжитесь с нами для консультации. Мы поможем вам создать интерьер, который будет соответствовать вашему стилю жизни!
С уважением, Наталья Кунилова
04.09.2024
Блог на сайте

Кейс: Превращение Однокомнатной Квартиры в Современное Пространство для Жизни и Бизнеса

Кейс: Создание Уютного и Функционального Дома для Молодой Семьи

Мягкие Навыки в Действии: Как и Почему Свидетели Иеговы продолжают процветать?

Стресс, время и наше здоровье: Уроки из «Аромата времени» Бён-Чхоль Хана

«Общество усталости. Негативный опыт в эпоху чрезмерного позитива»

Бён-Чхоль Хан — южнокорейский философ современности

Об анти-стресс проекте. Ссылки социальные сети.

Обзор книги Ганса Селье «Стресс без дистресса». 5 практических советов

Отзыв Ирины Хайруллиной на Ретрит «42 часа тишины»

Отзыв Марины Антоновой на ретрит «42 часа тишины»

«Исцеляющий сон: как повысить свою жизненную энергию через качественный отдых»?

Отзвыв Эльвиры Сабировой на ретрит «42 часа тишины».

Кейс: «Цветущие ветки миндаля» — дизайн и ремонт квартиры для пары

🔮 Кейс: «Гармония пространства: у Жаклин»














Наталья, мне нравится! 🙌 Спасибо за внимание к деталям и проработку всех нюансов. Перепланировка получилась действительно удобной и функциональной, а дизайн — стильным. Очень рада, что доверилась вам! Теперь остается только расслабиться и наслаждаться результатом. 😊